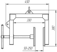
Захват для сэндвич-панелей ТГ-ЗСП
Захват для сэндвич-панелей ТГ-ЗСПу (универсальный) предназначен для перемещения сэндвич-панелей в вертикальном и горизонтальном положении. Данный вид захвата оснащен резиновыеми накладками, что исключает повреждения поверхности сэндвич-панели. При подъеме сэндвич-панелей большой длины рекомендуется использовать траверсу с двумя захватами ТГ-СП. Захват комплектуется на выбор текстильным стропом СТК-0,5/500 (по умолчанию) или звено ОВ-1,0 (грузоподъемность 1,0 т).
Общий вид захвата:
Технические характеристики:
|
Обозначение |
Г/п, т |
Ширина зева, мм |
Габариты ДхШхВ, мм |
Масса, кг |
Цена, руб. |
|
ТГ-ЗСП1-0,4 |
0,4 |
50-250 |
450х300х380 |
23,0 |
6000,00 |
Маркировка захвата:
ТГ - производитель ТраверсГрупп
ЗСП1 - Захват для сэндвич панелей, исп.1
0,4 - Грузоподъемность одного захвата, т
Захват для сэндвич-панелей ТГ-ЗСП2 (для кровельных панелей) предназначен для перемещения кровельных сэндвич-панелей горизонтальном положении. Данный вид захвата оснащен резиновыеми накладками, что исключает повреждения поверхности сэндвич-панели. Захват имеет распределенную конструкцию и не требует применение дополнительных грузозахватных средств.
Общий вид захвата:

Технические характеристики:
|
Обозначение |
Г/п, т |
Ширина зева, мм |
Масса, кг |
Цена, руб. |
|
ТГ-ЗСП2-0,4 |
0,4 |
0-250 |
65,0 |
15270,00 |
Захват для сэндвич-панелей ТГ-ЗСП3 (для стеновых) предназначен для перемещения стеновых сэндвич-панелей вертикальном положении. Данный вид захвата, что исключает повреждения поверхности сэндвич-панели, так как не взаимодействет с поверхностью панели, не оставляет вмятин и задиров. Захват имеет разборную конструкцию, работает в паре. Поднимать одним захватом панель не рекомендуется.
Технические характеристики:
|
Обозначение |
Г/п, т (пары) |
Ширина панели, мм |
Масса, кг/шт |
Цена, руб/шт |
|
ТГ-ЗСП3-0,25/100 |
0,25 |
100 |
2,2 |
2500,00 |
|
ТГ-ЗСП3-0,25/120 |
0,25 |
120 |
2,3 |
2850,00 |
|
ТГ-ЗСП3-0,25/150 |
0,25 |
150 |
2,5 |
3000,00 |
Захват для сэндвич-панелей ТГ-ЗСП4 (воротковый) предназначен для перемещения стеновых сэндвич-панелей вертикальном положении. Данный вид захвата имеет конструкцию позволяющую исключить повреждения сэндвич-панели при монтаже, так как не взаимодействет с поверхностью панели, не оставляет вмятин и задиров. Захват имеет , работает в паре. Поднимать одним захватом панель не рекомендуется.
Технические характеристики:
|
Обозначение |
Г/п, т |
Ширина панели, мм |
Масса, кг/шт |
Цена, руб/шт |
|
ТГ-ЗСП4-0,4/100 |
0,4 |
100 |
5600,00 |
|
|
ТГ-ЗСП4-0,4/150 |
0,4 |
150 |
|
6250,00 |
|
ТГ-ЗСП4-0,4/200 |
0,4 |
200 |
|
7500,00 |
|
ТГ-ЗСП4-0,4/250 |
0,4 |
250 |
|
8000,00 |








